GTS-MST TELESCOPIC MAST

The Green-Tek Solution Telescopic pole range is a durable and versatile mast solution designed for demanding environments. Constructed from hot-dip galvanized steel and Coated With Protective Powder coating, it features a telescopic design Mast with manual winch operation, ensuring reliable lifting and stability. Compatable with Green-Tek Solutions Range of HDPE Waterfill, Concrete and Metal POD Bases the Telescopic Poles make a compact solution for your temporary tower solutions The perfect choice for mining, construction, emergency response, and event lighting.

TYPICAL APPLICATIONS

Road/Cycleways/Walking Paths, Security & Surveillance Municipal Councils & Events, Construction site lighting, Emergency services & disaster recovery lighting, events and festivals, Industrial shutdowns, turnarounds, and maintenance work, Agricultural operations, Military and defence field operations, Ports, logistics yards, and shipping terminals, Camps.

 
Model GTS-MST-4M GTS-MST-7M GTS-MST-9M
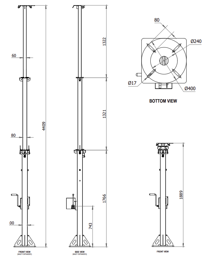
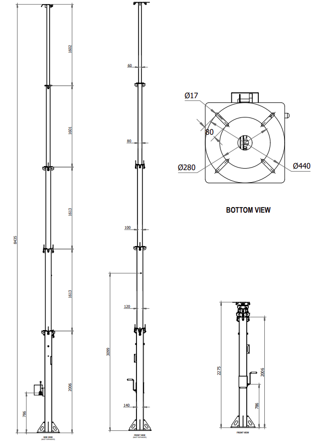
Extended height 4409mm 6429mm 8935MM
Retracted Height 1889mm 1780mm 2775MM
Material Square Steel Pipe Sections
Mast Sections 3 sections 5 sections 5 Sections
Mast Section Sizes 100 - 80 - 60mm 140-120-100-80-60mm 140-120-100-80-60mm
Base Dimension 400x450mm 440x440mm 440x505mm
Material Square Steel Pipe Sections
Lift Operation Manual Winch 500Kg Rated
Coating Hot-dip galvanized
Powder coated
Maximum headweight 25kg 50kg 25kg
POD Compatability HDPE, Concrete and Metal POD
Weight 100kg 200kg 300kg
Accessories Optional 76mm OD Spigot
60mm OD Spigot
Stanless Steel Hold Down Ropes

REWATECHNO

REWA TECHNO provides web, mobile, and software development solutions ranging from analytics and consulting to delivery and launch. We react as a technical partner for enterprises and startups, taking responsibility for product development. Our experts deliver market-driven solutions and ensure a smooth and efficient workflow.

https://www.rewatechno.com
Previous
Previous

GTS-PST-SCC SOLAR CCTV TOWER

Next
Next

GTS 2600 SOLAR CUBE