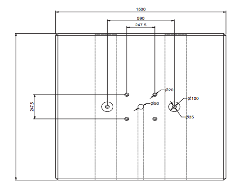
GTS-CP-03 (1500X1500X600)

Green-Tek Solutions’ Concrete Pods are Engineered Built for resilience and designed for versatility, deliver dependable off-grid energy in a durable, lowmaintenance package. Available in three sizes and crafted from 32MPa engineered concrete, these pods offer unmatched structural integrity and long-term performance in demanding environments. Whether powering remote sites, enhancing security, or supporting emergency infrastructure, each pod is optimized for stability, weather resistance, and ease of deployment.

Custom applications available—because your energy needs aren’t one-size-fits-all.

TYPICAL APPLICATIONS

Mining, Civil & Construction, Rail, Power Generation & Utilities, Road/Cycleways/Walking Paths, Security & Surveillance Municipal Councils & Events, Mining site perimeter surveillance, Temporary security for remote infrastructure, Critical asset protection, Event security, Emergency response and disaster relief zones, Defence and military temporary

 
Model GTS-CSP-03
Dimensions 1500L X 1500W X 600H
Weight 3114kg
POD Material 32MPA Concrete Steel Reinforced
Compatable Pole Height 4M, 6M, 8M, 10M, 12.5m, 15m
Hold Down Bolt 247.5 x 247.5 M20
Lifting 2 X 2.5 Tonne Lifting Points
2 x Forklift Pockets
Accessories PVC Cable Conduit (Optional)

REWATECHNO

REWA TECHNO provides web, mobile, and software development solutions ranging from analytics and consulting to delivery and launch. We react as a technical partner for enterprises and startups, taking responsibility for product development. Our experts deliver market-driven solutions and ensure a smooth and efficient workflow.

https://www.rewatechno.com
Previous
Previous

GREEN-TEK HDPE WATERFILLED POD

Next
Next

GTS-CSP-02 (1200X1200X675)