PEMS-12030-A1SS633P-DC

GENERAL SPECIFICATIONS

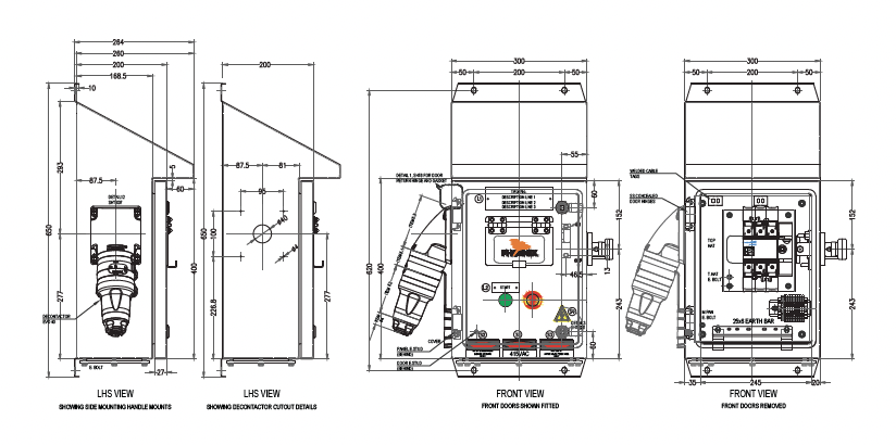
  • IP66-rated per AS 60529; 3mm 316 SS fully welded construction

  • Top hat mounting stand: gloss white 2mm mild steel, painted

  • Rear door & exterior: NA finish; remove all weld stains 2mm 316 SS with foam pour-in gasket

  • Hinges: polyurethane standard pour-in gaskets

  • Lock: 8mm square SS spanner (top/bottom of enclosure)

  • Hardware: M8 × 15mm SS nuts/washers/studs/bolts
    5.0mm aluminium entry

  • Neoprene 20x3mm gasket for IP rating

  • Min. 5mm safety glass with bevelled edge

  • Earth all glandplates & mounting pans to main bar via 6mm? flex cable

  • Earth top looms to door back via 6mm2 flex cable

  • Secure cable looms to door back in black nylon sock

  • Flush-mount terminals/earth bar (excl. earths at sock back)

  • Wire internal light/isolator aux. individually to terminals

  • External main: 1mm SS laser-etched black

  • Internal: traffolyte with 3M double-sided tape

  • 415V AC: Red/White/Blue

  • 240V AC: Pos. (Orange)/Neg. (Purple/Violet)

  • Earth: Yellow/Green (numbered; all earths Y/G)

  • Panel/door/mounting pans/top hat: M6 x 15mm bolt/nut/washer/ spring washer (cold)

  • Wire discharge door/panel/doors to main earth bar via 6mm2 cable


Download brochure

PEMS-12030-A1SS633P-DC

Previous
Previous

PEMS-11081-TF1-001

Next
Next

PEMS-11081-TF1-001