Mid Western Regional Council – Riverside Drive

 

CLIENT OVERVIEW:

Mid Western Regional Council governs a region in NSW known for agriculture, mining, and tourism, serving approx. 24,000 residents.

PROJECT OVERVIEW:

The council sought a sustainable lighting solution for Riverside Drive to enhance safety and meet environmental standards.

SCOPE OF WORKS:


Phoenix EMS designed and manufactured solar lighting and Ultraswing poles for the upgrade.

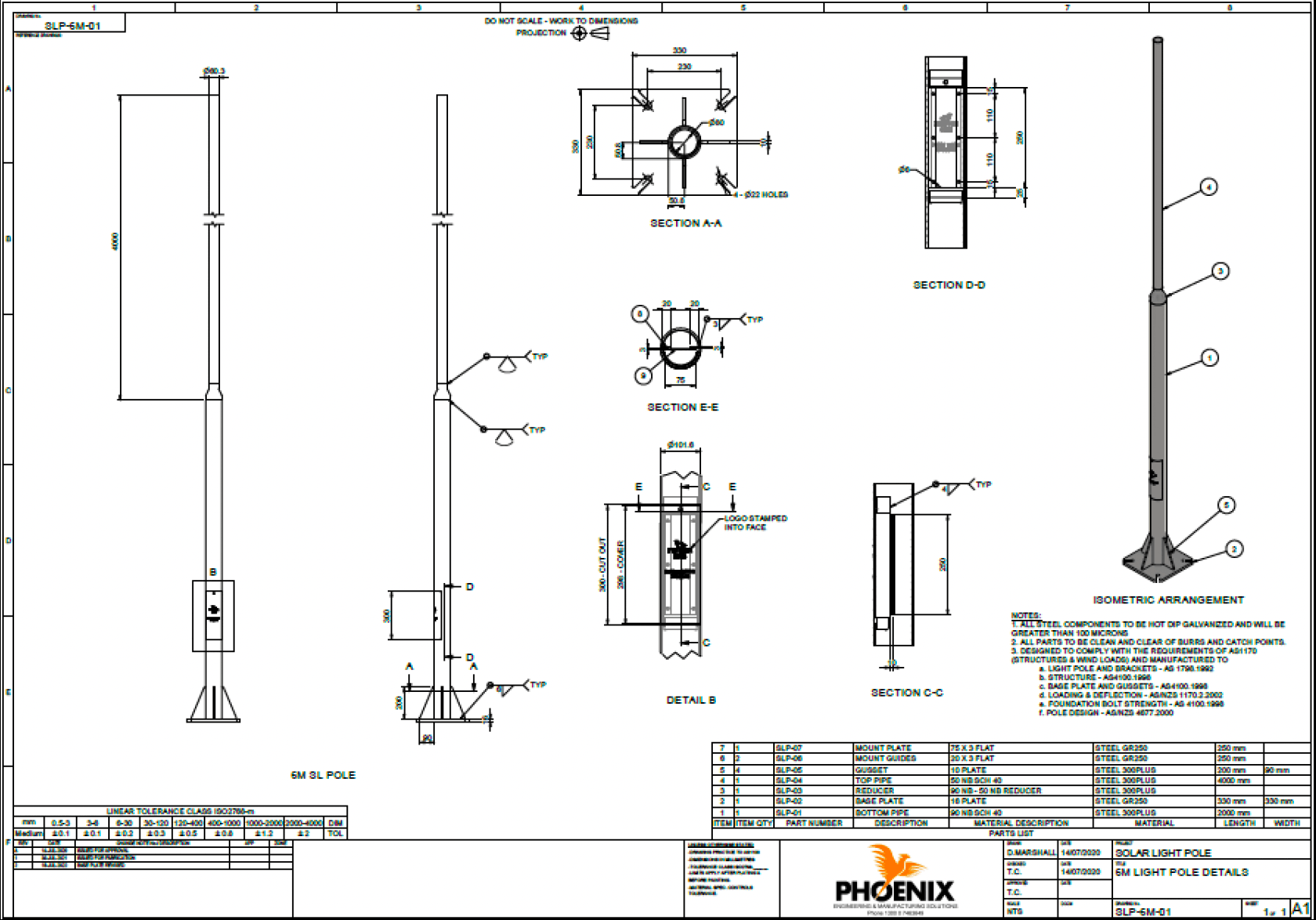
DESIGN & TECHNICAL DETAILS:

  • Lighting design exceeded PR3 standards for local roads.

  • Complied with International Dark Sky Association requirements (UWLR 0%).

 

PRODUCTS & SOLUTIONS:

  • Galactic Plus Solar Lights with 4G IoT control.

  • Ultraswing 6m black solar light poles.

  • Rag bolts and cage assemblies.

PROJECT VALUE:


Stage 1 valued at $90,719, with additional areas planned.

OUTCOME:


Delivered an energy-efficient, compliant lighting solution that improved safety and sustainability.

Previous
Previous

Ingenia Lifestyle The Grange, Morisset

Next
Next

SCEE Group – Civeo Mining Camps